66°
Baton Rouge, Louisiana
7 Day Forecast
Follow our weather team on social media

Ascension Parish holds public meeting about location of new animal shelter

2 years 11 months 2 weeks ago Tuesday, February 28 2023 Feb 28, 2023 February 28, 2023 5:44 PM February 28, 2023 in News
Source: WBRZ

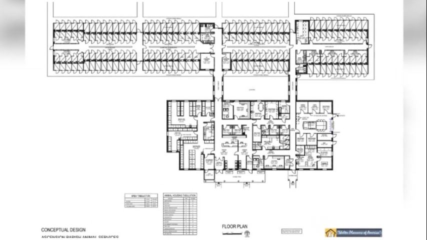
ASCENSION - Officials with the Ascension Parish Government are holding a public meeting to inform residents about a plan that's been in the works since 2018.

The proposed location is along N. Burnside Ave, within a block of another rescue shelter. 

We’ve looked at over 20 properties for the animal shelter and unfortunately none of them have worked out to date," said Ruth Phillips, Chief of Staff for the Ascension Parish Government.

It's been an uphill battle for the parish to build a new shelter. Funding for the shelter was secured in 2018 through an approved millage, but lot pricing and resident pushback has presented a challenge.

We had heard through the council that there were some residents that had issues with the proximity to their neighborhood where the animal shelter would be located," Phillips said.

Phillips hopes Tuesday's meeting will provide clarity to concerned residents, that the shelter will not negatively impact their neighborhood.

"This facility is 90% indoors and that the dogs will be indoors when there’s no staff present, we will control how many are out at a time.”

The only shelter in the parish, Cara's House, is constantly overwhelmed with the number of animals surrendered on a daily basis. With the parish population growing, a new shelter could ease the burden.

The proposed shelter could cost up to $10 million to build. The meeting and presentation will take place at the Ascension Parish Governmental Complex at 6 p.m. Tuesday in rooms 109 and 110.

More News

Desktop News

Click to open Continuous News in a sidebar that updates in real-time.
Radar
7 Days